Inspiration
Cascade Contemporary: Sleek, Modern Outdoor Kitchens for the Ultimate Entertainer
Modern outdoor living calls for more than a simple grill on a patio. Enter the Cascade Contemporary Collection a line of modular outdoor kitchen components designed for homeowners who value sleek design, clean lines, and functional elegance. With modular...
Canyon Palette Studio: Designing Your Outdoor Kitchen with Style and Precision
When it comes to creating a stunning outdoor kitchen, one of the most powerful tools at your disposal is design palette planning. The Canyon Palette Studio concept borrows inspiration from the versatile Canyon Collection a modular outdoor kitchen series...
Kamado Style: Mastering the Art of Outdoor Cooking
For serious outdoor chefs, the Kamado grill isn’t just a cooking tool it’s a game-changer. Its unique design, versatility, and efficiency allow you to smoke, grill, bake, and roast with unmatched flavor. Pair it with a modular outdoor kitchen,...
Outdoor Cocktail Haven: Mix, Mingle, and Entertain in Style
There’s nothing quite like enjoying a handcrafted cocktail in your own backyard. An outdoor cocktail haven combines style, functionality, and social energy, turning your patio into the ultimate gathering spot. With modular outdoor kitchen systems, weather-resistant cabinetry, and smart layout...
Compact Patio Solutions: Big Outdoor Cooking Power in Small Spaces
Not every home has a sprawling backyard but every homeowner deserves a premium outdoor cooking experience. A compact patio doesn’t mean compromising on performance, storage, or style. With smart planning and modular outdoor kitchen systems, you can transform even the...
Ultimate Outdoor Chef: Building the Perfect Outdoor Kitchen for Serious Grilling
Becoming the ultimate outdoor chef isn’t just about mastering flame control or perfecting a steak. It’s about creating an outdoor cooking space that supports your creativity, withstands the elements, and transforms your backyard into a true culinary destinationellement. A professionally...
Get Inspired With Real Rendering Examples!
Challenger Designs Outdoor Kitchen Concept - INSPO7640
Challenger DesignsThis product is a concept rendering from Challenger Designs, which is available for custom design and purchase. Please contact a sales representati...
View full detailsChallenger Designs Outdoor Kitchen Concept - INSPO1955
Challenger DesignsThis product is a concept rendering from Challenger Designs, which is available for custom design and purchase. Please contact a sales representati...
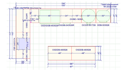
View full detailsChallenger Designs Outdoor Kitchen - 12' Full Kitchen Concept - INSPO1270
Challenger DesignsConcept Main Features: 12' Challenger Outdoor Kitchen w/ Storage 30/36" Stainless Steel Grill Power Burner Refrigerator Sink Kamado Grill This prod...
View full detailsChallenger Designs Outdoor Kitchen Concept - INSPO5710
Challenger DesignsThis product is a concept rendering from Challenger Designs, which is available for custom design and purchase. Please contact a sales representati...
View full detailsChallenger Designs Outdoor Kitchen Concept - INSPO5054
Challenger DesignsThis product is a concept rendering from Challenger Designs, which is available for custom design and purchase. Please contact a sales representati...
View full detailsChallenger Designs Outdoor Kitchen Concept - INSPO2000
Challenger DesignsThis product is a concept rendering from Challenger Designs, which is available for custom design and purchase. Please contact a sales representati...
View full detailsChallenger Designs Outdoor Kitchen Concept - INSPO2014
Challenger DesignsThis product is a concept rendering from Challenger Designs, which is available for custom design and purchase. Please contact a sales representati...
View full detailsChallenger Designs Outdoor Kitchen Concept - INSPO2014REV1
Challenger DesignsThis product is a concept rendering from Challenger Designs, which is available for custom design and purchase. Please contact a sales representati...
View full detailsChallenger Designs Outdoor Kitchen Concept - INSPO2022
Challenger DesignsThis product is a concept rendering from Challenger Designs, which is available for custom design and purchase. Please contact a sales representati...
View full detailsChallenger Designs Outdoor Kitchen Concept - INSPO2038
Challenger DesignsThis product is a concept rendering from Challenger Designs, which is available for custom design and purchase. Please contact a sales representati...
View full detailsChallenger Designs Outdoor Kitchen Concept - INSPO5962
Challenger DesignsThis product is a concept rendering from Challenger Designs, which is available for custom design and purchase. Please contact a sales representati...
View full detailsChallenger Designs Outdoor Kitchen Concept - INSPO5999REV1
Challenger DesignsThis product is a concept rendering from Challenger Designs, which is available for custom design and purchase. Please contact a sales representati...
View full details